Приветствуем! Вы знаете, что мы работаем в пределах 300 км от нашего производства. Это вся Московская область и частично соседние области. Но когда нас попросили поставить домики в такой шикарной локации, мы просто не смогли отказать! Посмотрите, как органично все смотрится! Это парк-отель Рассвет на берегу Горьковского водохранилища (Нижегородская область)
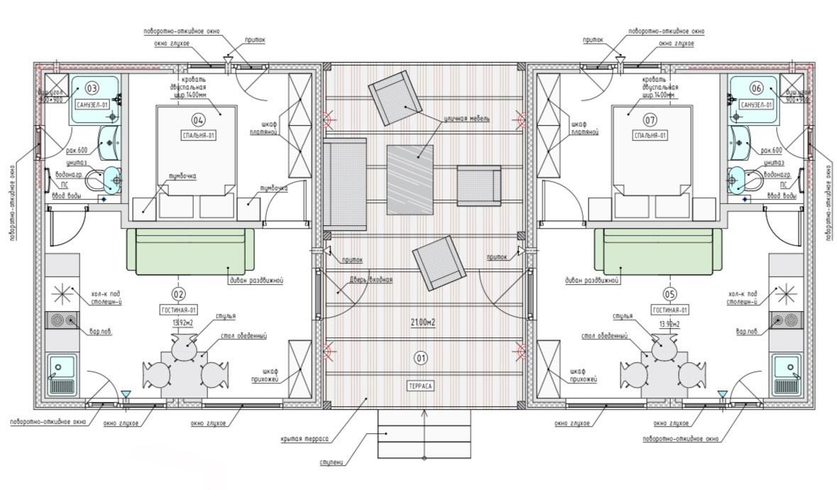
Планировка - по 2 двухмодульных дома и терраса посередине. Такие вот интересные дуплексы)
Ребята, следующим летом ждите нас в гости!
Проекты и цены -> Проекты и цены модульных домов
Отзывы реальных клиентов -> Отзывы о компании SPmodul | СПмодуль
Контакты: +79269166005
Наш telegram- канал Модульные дома SPmodul | индивидуальные и готовые проекты
Отзывы реальных клиентов -> Отзывы о компании SPmodul | СПмодуль
Контакты: +79269166005
Наш telegram- канал Модульные дома SPmodul | индивидуальные и готовые проекты