Как вы уже знаете, почти всем нашим клиентам мы производим дома по индивидуальным проектам!
- Кому-то проще выбрать из готовых вариантов (их уже ооочень много накопилось! высылаем по запросу! На сайте все разместить сложновато + проекты добавляются) И, скорее всего, внести небольшие коррективы (подвинуть окошко, поменять расстановку розеток/светильников..)
- Кто-то посмотрит наши варианты. Выберет наиболее подходящую базу. И дальше подстроит ее под себя с нашим проектировщиком. Хотя бы конфигурацию модулей/ комнат выбрать - это уже сильно ускоряет работу! Самый популярный вариант сотрудничества! Рекомендуем)
- а кто-то хочет придумать и воплотить в жизнь свой самый особенный дом! Это сложнее) зато всё под себя!
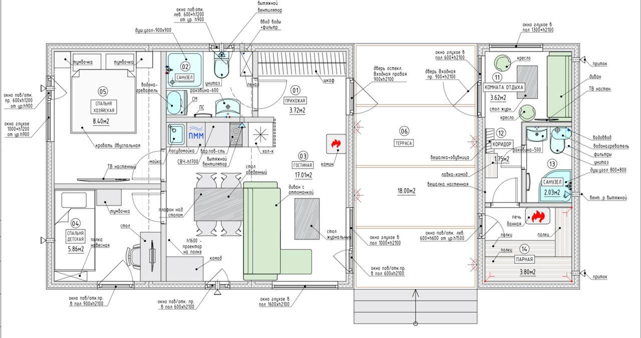
Тут у нас 3 модульный дом + 1 модульная баня. Соединены крытой террасой. Кажется, это идеально для небольшой дачи! Или арендного бизнеса)
Этот домик можно затестить!
обращайтесь к нам за подробностями!
Теплая площадь жилой части (сумма площадей комнат) - 38 кв.м. Модуль бани- 11,2 кв.м. Терраса 18 кв.м. Внешние габариты всего дома 14 на 6 м
Проекты и цены -> Проекты и цены модульных домов
Отзывы реальных клиентов -> Отзывы о компании SPmodul | СПмодуль
Контакты: +79269166005
Наш telegram- канал Модульные дома SPmodul | индивидуальные и готовые проекты
Отзывы реальных клиентов -> Отзывы о компании SPmodul | СПмодуль
Контакты: +79269166005
Наш telegram- канал Модульные дома SPmodul | индивидуальные и готовые проекты